TE HUUR Uitzonderlijk winkelpand op AAA-ligging in het hart van de stad
Bent u op zoek naar een commerciële toplocatie met maximale zichtbaarheid en gegarandeerde passage? Dan is dit uitzonderlijke winkelpand precies wat u zoekt.
Gelegen in de Koning Albertstraat, pal tegenover ICI PARIS XL en naast TELENET, bevindt dit pand zich op een absolute AAA-ligging. Dankzij de centrale positie aan de Grote Markt geniet u hier van een constante stroom aan voorbijgangers, shoppers en bezoekers. Een locatie waar zichtbaarheid, bereikbaarheid en commerciële slagkracht samenkomen.
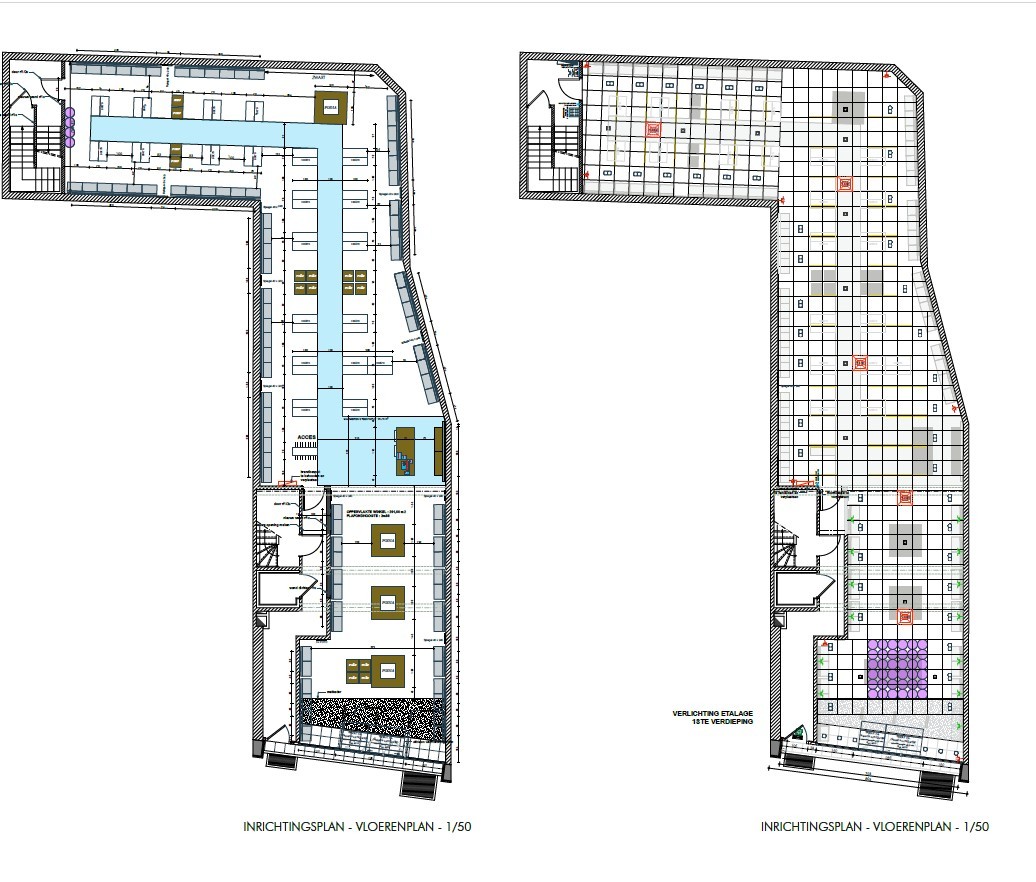
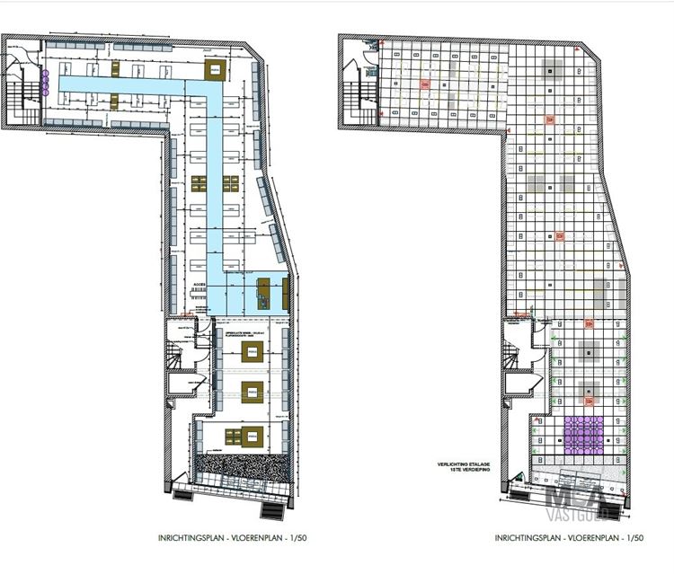
Dit ruime winkelpand biedt niet alleen een sterke etalagepositie, maar beschikt bovendien over veel stockruimte een enorme troef voor retailers die efficiënt willen werken en groeien. De combinatie van commerciële zichtbaarheid en praktische opslagmogelijkheden maakt dit pand uitzonderlijk in zijn klasse.
Kortom:
- AAA-ligging
- Maximale visibiliteit
- Hoge passage
- Omringd door sterke retailers
- Ruime stockmogelijkheden
Dankzij het compacte en overzichtelijke handelscentrum geniet onze Stad van een geconcentreerde en sterke shoppersstroom. Bezoekers flaneren doelgericht door de kern, waardoor topliggingen zoals deze maximaal renderen. Minder versnippering, meer rendement per vierkante meter.
Professionele begeleiding door een lokale expert
In een markt waar grote spelers vaak de toon zetten, maakt lokale verankering het verschil.
MCA-Vastgoed kent de Hasseltse binnenstad tot in detail. Wij zijn snel ter plaatse, hebben directe toegang tot onze panden en begeleiden u persoonlijk en professioneel bij elke stap. Dankzij onze uitgesproken marktkennis matchen (luisteren en meedenken) wij steeds weer elk concept van de kandidaat met de juiste locatie.
Uitgezonderd bij pop-up is de commissie voor bemiddeling in handelshuur bij ons ten laste van de eigenaar.
Meer info of een bezoek ter plaatse?
Contacteer ons gerust telefonisch: 0485 34 56 71, per mail: marleen@mca-vastgoed.be of kom langs in ons vernieuwd kantoor in Quartier Boutique, Kapelstraat 21 Hasselt.
